Mái gỗ của ngôi nhà ở Bà Rịa Vũng Tàu xây từ năm 1988, còn chắc chắn. Xây nhà mới, chủ nhà muốn giữ lại hệ mái đi theo tuổi thơ mình.
- Không thể rời mắt khỏi mẫu bàn ăn mặt đá đầy cảm hứng
- Gợi ý bàn ăn mạ PVD hiện đại cho
căn hộ, chung cư
- Trang trí nhà bếp với mẫu bàn ăn mạ vàng được nhiều
người yêu thích
- Chọn bàn ăn mạ titan làm sáng bừng
không gian nhà bếp

Ngôi nhà tọa lạc trên một miếng đất rộng 300 m2 tại xã Phước Tỉnh, huyện Long Điền, tỉnh Bà Rịa Vũng Tàu. Không gian chia thành hai phần rõ rệt: tầng một tận dụng mặt tiền giáp đường lớn được dùng làm nơi kinh doanh gạo, tầng hai là không gian sống của gia đình gồm một cặp vợ chồng và hai đứa con.

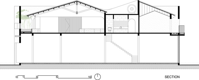
Trước đây, khu đất có một ngôi nhà kết cấu mái gỗ xây từ năm 1988. Ngôi nhà gắn liền với tuổi thơ của gia chủ. Khi làm nhà mới, chị muốn giữ lại hệ mái vẫn còn chắc chắn này như là một món quà của thời gian.

Vì thế, các kiến trúc sư đã xử lý hình khối kiến trúc bên trong theo kiểu truyền thống kết hợp công năng sử dụng hiện đại, nối kết phần xây mới với kết cấu mái cũ, giữ lại toàn bộ hệ thống vì kèo, chi tiết hoa văn của hệ mái cũ.

Do ngôi nhà tiếp xúc đường lớn, nơi có nhiều hoạt động buôn bán cũng như xe cộ đi lại nên mặt tiền tầng hai sử dụng gạch bông gió, vừa tạo thẩm mỹ, vừa đóng không gian lại, hạn chế ồn ào khói bụi. Đằng sau tường gạch bông gió là vườn cây, giếng trời lấy sáng trên cao.

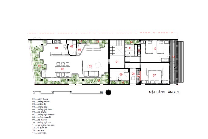
Tiếp đó là không gian chung bao gồm nhà bếp - phòng ăn - phòng khách, khu vệ sinh và giặt phơi. Xung quanh không gian chung này là một khu vườn nhỏ.

Giữa phòng bếp và phòng khách có một khối gỗ (chính là khu vệ sinh chung và giặt phơi) để hạn chế tầm nhìn từ phòng khách vào khu vực bếp.

Phía sau là không gian ngủ của gia đình. Kết thúc phía cuối nhà là một ban công lớn, nối kết phòng ngủ bố mẹ và phòng ngủ con đồng thời tương tác với khu nhà của ông bà phía sau.

Các không gian từ trước ra sau nhà đóng mở liên hoàn tạo sự sinh động cũng như thuận tiện trong sử dụng.

Ban công phía sau mở ra tạo sự kết nối giữa 2 phòng ngủ.

Mỗi góc căn nhà đều có vườn cây nhỏ để thư giãn.

Chủ nhà theo Thiên Chúa giáo. Vì vậy, nhiều chi tiết liên quan đến nhà thờ hay cây thập giá được tái hiện.

Mặt bằng tầng 1.

Mặt bằng tầng 2.

Mặt bằng mái.
Theo Thái Bình
VnExpress
Hãy Comment chuẩn SEO vừa làm tốt cho site của Bạn vừa không bị GOOGLE phạt. Nếu muốn lấy backlink hãy chèn URL không chèn code gắn text link. Biểu tượng hài hướcEmoticon