Ngôi nhà Hàn Quốc làm mái dốc và không sử dụng đồ trang trí giúp tạo cảm giác rộng rãi hơn thực tế.
- Không thể rời mắt khỏi mẫu bàn ăn mặt đá đầy cảm hứng
- Gợi ý bàn ăn mạ PVD hiện đại cho
căn hộ, chung cư
- Trang trí nhà bếp với mẫu bàn ăn mạ vàng được nhiều
người yêu thích
- Chọn bàn ăn mạ titan làm sáng bừng
không gian nhà bếp

Ngôi nhà mang tên "The Tiny House of Slow Town" (Ngôi nhà nhỏ trong thị trấn sống chậm) là một phần của dự án xây dựng các ngôi nhà bằng gỗ để tạo thêm chỗ ở cho thành phố Pyeongchang thuộc tỉnh Gangwon, Hàn Quốc, theo Decoist.

Gangwon là một trong số ít các khu vực hoang sơ còn lại ở Hàn Quốc, và sự sạch, xanh đó cần được bảo vệ. 'Ngôi nhà nhỏ của thị trấn sống chậm' nhằm mục đích cung cấp chỗ ở tối đa trong khi sử dụng tối thiểu nguyên vật liệu xây dựng và đảm bảo thân thiện với môi trường nhất.

Công trình rộng 19,8 m2 là một tác phẩm của công ty The Plus Partners, DNC Architects đã hoàn thành năm 2016.

Ngay từ bên ngoài, ngôi nhà đã gây ấn tượng với hai vật liệu chủ đạo là gỗ và kính tối màu. Nếu gỗ là một vật liệu lúc nào cũng được yêu thích trong xây dựng, mang lại sự ấm áp thì kính tạo cảm giác hiện đại cùng với sự thông thoáng phù hợp.

Bước vào bên trong, đầu tiên bạn thấy là phòng khách. Bạn có cảm giác căn phòng rộng rãi hơn rất nhiều so với thực tế nhờ việc không có các món đồ trang trí và mái nhà dốc làm tăng chiều cao cho ngôi nhà.

Phòng ngủ được đặt trọn vẹn ở trên gác lửng.

Ngay dưới gác lửng là nhà bếp nhỏ xinh nhưng rất hiệu quả.

Cầu thang dẫn đến phòng ngủ được tận dụng làm tủ chứa đồ.

Phòng tắm không hề có cảm giác chật chội, vẫn đầy đủ các trang thiết bị cần thiết.

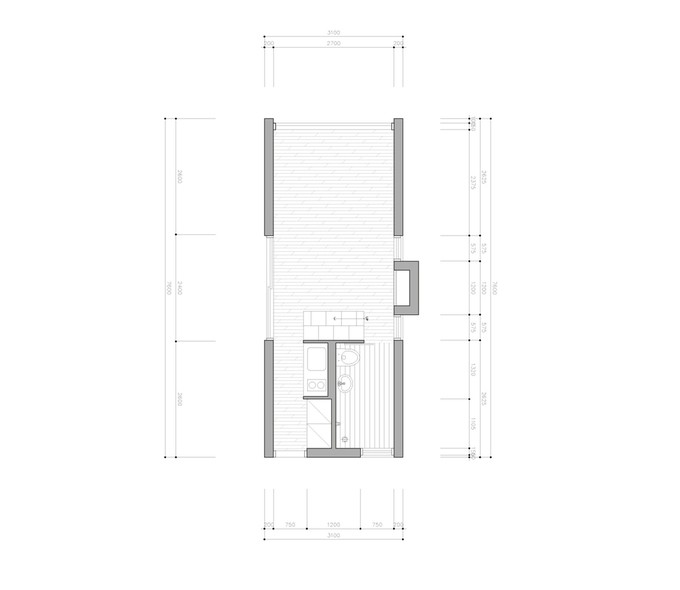
Bản vẽ mặt bằng tầng trệt ngôi nhà.

Bản vẽ mặt đứng.
Theo Thái Bình
VnExpress
Hãy Comment chuẩn SEO vừa làm tốt cho site của Bạn vừa không bị GOOGLE phạt. Nếu muốn lấy backlink hãy chèn URL không chèn code gắn text link. Biểu tượng hài hướcEmoticon