Ngôi nhà với thiết kế tuyệt vời này lấy cảm hứng từ nét sinh hoạt đặc trưng nhưng mang sự đối lập của hai nét văn hóa Á – Âu tạo cảm giác mới mẻ nhưng cũng hòa hợp đến lạ kỳ.
- Không thể rời mắt khỏi mẫu bàn ăn mặt đá đầy cảm hứng
- Gợi ý bàn ăn mạ PVD hiện đại cho
căn hộ, chung cư
- Trang trí nhà bếp với mẫu bàn ăn mạ vàng được nhiều
người yêu thích
- Chọn bàn ăn mạ titan làm sáng bừng không gian nhà bếp
Ngôi nhà này được xây dựng vào năm 2016 bởi công ty kiến trúc Modal Design bên một bờ biển tại Venice, California, Mỹ - nơi nổi tiếng với những kênh đào và bãi biển tuyệt đẹp. Không gian phóng khoáng, đầy nắng và gió khiến người dân ở đây lựa chọn thiết kế nhà đa phần theo phong cách nhiệt đới, cao bồi hoặc hiện đại tối giản.
Tuy nhiên ngôi nhà này lại được chủ nhân lựa chọn thiết kế theo một hướng hoàn toàn khác biệt. Điển hình chính là sự kết hợp nét Á – Âu trong thiết kế và lựa chọn đồ vật trang trí. Nếu bạn đang tò mò, vậy hãy thử khám phá không gian sống đó ngay phía dưới đây.

Ngôi nhà được thiết kế chủ yếu từ chất liệu gỗ, các bảng màu gỗ được lựa chọn khá đa dạng phù hợp với từng không gian sống trong nhà và ngoài trời.

Sàn nhà được làm từ gạch công nghiệp miếng to, không có hoa văn và có tông màu sáng.

Góc làm việc khá nhỏ so với diện tích của ngôi nhà, tuy nhiên chúng ta có thể nhận thấy nơi này đã được chọn vì sự yên tĩnh đến từ không gian xung quanh nó.

Chất liệu gỗ từ trần khá ấn tượng đối với người nhìn.

Những hàng vân gỗ dày, sậm màu được gắn các ống đèn chiếu sáng sẽ tạo cảm giác choáng ngợp khi về đêm.

Không gian hiên không rộng lớn lắm nhưng cũng đủ bày biện một bộ bàn ghế để thưởng trà hoặc ngồi tắm nắng.

Phòng tắm sạch sẽ, gọn gàng và hiện đại.

Bồn tắm đơn lộ thiên khá đặc biệt.

Khung cảnh vườn tược bên ngoài của ngôi nhà.

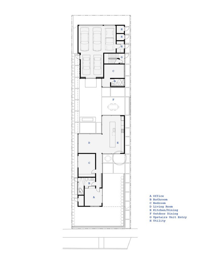
Bản vẽ thiết kế của ngôi nhà.

Không gian 3D được mô phỏng.
Theo Homedsgn/Helino
Hãy Comment chuẩn SEO vừa làm tốt cho site của Bạn vừa không bị GOOGLE phạt. Nếu muốn lấy backlink hãy chèn URL không chèn code gắn text link. Biểu tượng hài hướcEmoticon