Ngôi nhà nằm ở thủ đô Kuala Lumpur, Malaysia có mặt tiền là các khối hộp bê tông xếp chồng, trong đó trồng các loại cây.
- Không thể rời mắt khỏi mẫu bàn ăn mặt đá đầy cảm hứng
- Gợi ý bàn ăn mạ PVD hiện đại cho
căn hộ, chung cư
- Trang trí nhà bếp với mẫu bàn ăn mạ vàng được nhiều
người yêu thích
- Chọn bàn ăn mạ titan làm sáng bừng
không gian nhà bếp

Theo Archdaily, ngôi nhà là một thiết kế của kiến trúc sư Lee Cherng Yih cùng các đồng nghiệp tại Formzero, dành cho một cặp vợ chồng đã nghỉ hưu, yêu thích trồng cây.

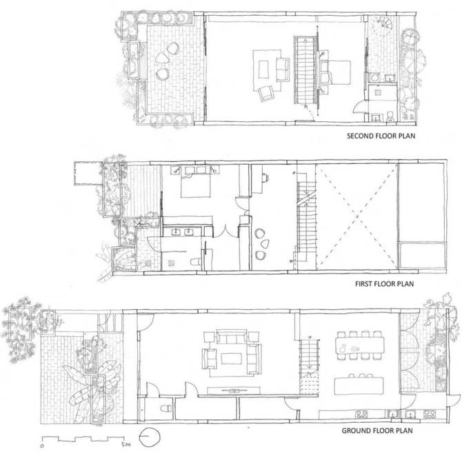
Nhà xây 3 tầng, tổng diện tích 340 m2, hoàn thành năm 2017, là sự kết hợp giữa nhà ở và vườn với phong cách nhiệt đới đương đại.

Với mặt tiền nhà là các khối hộp bê tông xếp chồng - nơi chủ nhà trồng hơn 40 loại cây ăn quả và rau, khiến nó trở nên nổi bật với xung quanh, ngôi nhà được đặt tên là Nhà hộp cây.

Bước vào nhà, người ta cảm nhận được tinh thần yêu nghệ thuật và tự nhiên của gia chủ. Tầng trệt bao gồm tường kính và các cửa sổ ở mặt trước và sau, mang đến không khí tươi, ánh sáng và thông gió chéo.

Cũng tại tầng trệt, đằng sau phòng khách và cầu thang trung tâm là không gian thông tầng bao gồm nhà bếp và khu vực ăn uống.

Nơi đây có cửa kính chạm trần mở ra khoảng sân xanh phía sau.

Lấy cảm hứng từ nhà nhiệt đới truyền thống, tre được sử dụng làm ván khuôn cho các hộp trồng cây bê tông. Kết cấu tre này là một giải pháp bền vững giúp kéo dài tuổi thọ của công trình với chi phí bảo trì thấp.

Hệ thống tưới tiêu có thể tùy chỉnh và kết nối giữa các hộp trồng cây với nhau, nhằm tiết kiệm dinh dưỡng và nước mưa trong đất. Hệ thống tưới có thể cung cấp đầy đủ và chính xác từ thành phần đất đến khối lượng nước cho mỗi hộp.

Với các hộp trồng cây bao xung quanh nên ở đâu trong nhà cũng có thể nhìn thấy cây xanh.

Phòng ngủ mang nhiều nét truyền thống của người dân vùng nhiệt đới với nhiều món đồ nội thất bằng gỗ đơn giản.

Ngoài các hộp bê tông trồng cây, ngôi nhà còn gây ấn tượng bởi kiến trúc và nội thất giản dị, mộc mạc. Ngôi nhà được xem như một ví dụ điển hình cho những gia chủ thành phố muốn trồng cây trong nhà, tại các nước vùng nhiệt đới.

Bản vẽ mặt đứng ngôi nhà.

Bản vẽ mặt bằng.
Theo Thái Bình
VnExpress
Hãy Comment chuẩn SEO vừa làm tốt cho site của Bạn vừa không bị GOOGLE phạt. Nếu muốn lấy backlink hãy chèn URL không chèn code gắn text link. Biểu tượng hài hướcEmoticon