Căn hộ có diện tích nhỏ nhưng với khả năng linh hoạt và khéo léo, các KTS trẻ đã đưa ra phương án sử dụng từng khu vực chức năng hợp lý.
- Không thể rời mắt khỏi mẫu bàn ăn mặt đá đầy cảm hứng
- Gợi ý bàn ăn mạ PVD hiện đại cho
căn hộ, chung cư
- Trang trí nhà bếp với mẫu bàn ăn mạ vàng được nhiều
người yêu thích
- Chọn bàn ăn mạ titan làm sáng bừng không gian nhà bếp
Tôi mới mua căn hộ 67.5m2 với cấu trúc: 02 phòng ngủ, PA, PK, bếp, 2WC. Hiện nay tôi có dự định cải tạo thêm 01 phòng ngủ nữa nhưng không biết bố trí thế nào cho hợp lý với căn hộ nhỏ.
Mong các KTS tư vấn thiết kế giúp tôi:
- Cải tạo căn hộ sao cho hợp lý, tận dụng tối đa diện tích mà lại có không gian sống thoải mái, thoáng mát với: 03 Phòng ngủ, 2 WC, phòng khách và phòng bếp.
- Cách khắc phục hướng nhà : Đông Nam vì chồng tôi sinh năm 1971. Bếp nên quay hướng nào?
Trân trọng,
Nguyễn Thái Lê
Kiến trúc sư tư vấn:
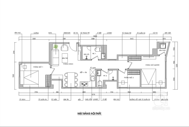
Dựa theo những thông tin mà bạn cung cấp và yêu cầu tư vấn thiết kế căn hộ chung cư, chúng tôi xin đưa ra phương án mặt bằng tư vấn thiết kế như sau:

Mặt bằng tư vấn thiết kế.
Chỉ với diện tích là 67,5m2 để bố trí mặt bằng với 3 phòng ngủ không phải là điều dễ dàng. Chúng tôi đã đưa ra phương án bố trí không gian tiếp khách và bếp được cải tạo để liền mạch hơn, tạo được hiệu quả rộng rãi cho không gian sinh hoạt chung của gia đình.
Bước từ sảnh vào là không gian phòng khách và phòng bếp được sử dụng 2 gam màu chính là màu gỗ sồi và màu trắng tạo cảm giác ấm cúng cho căn nhà. Phòng khách được bố trí bộ sofa nhỏ kết hợp với bàn trà hình tròn màu sắc nhẹ nhàng tạo cho không gian thoáng đãng.
Để tận dụng tối đa không gian chung, KTS tư vấn thiết kế không gian bếp hình chữ L cùng với bộ bàn ăn 6 ghế được đặt sát cửa sổ với đầy đủ công năng, tạo cảm giác thông thoáng, tăng sự liên kết giữa mọi người trong gia đình. Hơn thế nữa, gia chủ sinh năm 1971, hướng nhà hướng Đông Nam, vậy nên KTS tư vấn bố trí bếp theo hướng Đông Bắc (Sinh khí) để hút thêm may mắn, tài lộc.

Không gian phòng khách với gam màu nhẹ nhàng.

Kệ ti vi màu nhỏ gọn màu sồi trắng.

Tủ bếp hình chữ L kết hợp màu gỗ sồi làm điểm nhấn.

Bộ bàn ăn 6 ghế.
Điểm mạnh của căn nhà là không gian phòng ngủ đều được lấy sáng và thoáng trực tiếp bởi cửa sổ được bố trí trong phòng. Phòng ngủ của con trai phía bên phải từ sảnh vào được thiết kế với gam màu ghi sáng với điểm nhấn là nội thất màu gỗ sồi. Phòng ngủ của bố mẹ và con gái được bố trí bên phía đối diện. Với không gian phòng ngủ của cô con gái khá nhỏ vậy nên KTS đã tư vấn bố trí giường kết hợp tủ quần áo để tận dụng tối đa diện tích, căn phòng nhỏ được thiết kế bắt mắt với màu sắc nữ tính phù hợp với lứa tuổi của con.
Phía cuối nhà là phòng ngủ master được thiết kế dành cho đôi vợ chồng. Căn phòng là sự kết hợp của 3 gam màu sáng: màu gỗ sồi, trắng và ghi sáng cùng với việc bố trí những đồ nội thất hợp lý tạo nên một không gian ấm áp nhưng không kém phần sang trọng.

Không gian phòng ngủ con trai với gam màu xám hiện đại.

Phòng ngủ của con gái với màu sắc nữ tính.

Phòng ngủ master của 2 vợ chồng.

Phòng vệ sinh đầy đủ công năng.
Theo Afamily/Helino
Hãy Comment chuẩn SEO vừa làm tốt cho site của Bạn vừa không bị GOOGLE phạt. Nếu muốn lấy backlink hãy chèn URL không chèn code gắn text link. Biểu tượng hài hướcEmoticon