Ngôi nhà cấp 4 có diện tích 39m², với mặt tiền chỉ vỏn vẹn 3m, KTS của chúng tôi đã tạo ra căn nhà thoáng đãng, đầy đủ công năng và tiết kiệm diện tích nhất có thể.
- Không thể rời mắt khỏi mẫu bàn ăn mặt đá đầy cảm hứng
- Gợi ý bàn ăn mạ PVD hiện đại cho
căn hộ, chung cư
- Trang trí nhà bếp với mẫu bàn ăn mạ vàng được nhiều
người yêu thích
- Chọn bàn ăn mạ titan làm sáng bừng
không gian nhà bếp
Vợ chồng tôi hiện đang sống trong một ngôi nhà cấp 4 có diện tích 39 mét vuông (3 x 13 m) đang được thiết kế nhu sau: 1 sân (1,5m), phòng khách (4m), 1 phòng ngủ (3,5m), 1 bếp + WC (3,5m). Mong các kiến trúc sư tư vấn thiết kế và bố trí nội thất để chúng tôi để có không gian sinh hoạt cho 2-3 người (bố mẹ và con) thông thoáng và hợp lý nhất.
Xin chận thành cảm ơn!
Thiên Phú
Kiến trúc sư tư vấn:
Dựa theo những thông tin mà bạn cung cấp và yêu cầu tư vấn thiết kế, chúng tôi xin đưa ra phương án mặt bằng tư vấn thiết kế như sau :
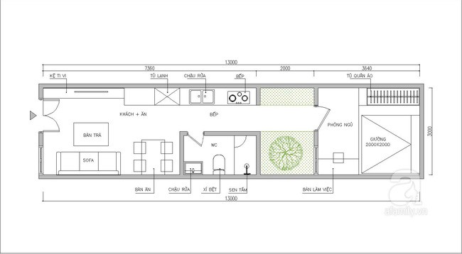
Mặt bằng bố trí các khu vực chức năng.
Để tận dụng tối đa diện tích, chúng tôi đã bố trí không gian phòng khách, ăn, bếp, vệ sinh, phòng ngủ... trở thành một không gian mang tính đa năng. Khoảng liên kết các không gian chức năng cũng chính là lối đi lại trong nhà. Các không gian được thiết kế theo phong cách tối giản, hiện đại với gam màu sáng là chủ đạo.
Ngôi nhà có lợi thế về chiều dài nhưng hạn chế về chiều ngang. Vì vậy, KTS đã tận dụng ưu điểm của ngôi nhà sử dụng một phần không gian cuối nhà làm sân tiểu cảnh, giải pháp thông thoáng, đối lưu tự nhiên.
Về mặt nội thất, phòng khách, bếp và ăn đều được sử dụng những đồ nhỏ gọn như bộ sofa có kích thước phù hợp với diện tích của phòng, bộ bàn ăn 4 ghế và hệ tủ bếp chữ I dọc theo chiều dài của ngôi nhà giúp tiết kiệm tối đa diện tích. Tất cả đều được thiết kế hợp lý về mặt không gian và màu sắc
Bộ sofa nhỏ gọn phù hợp với không gian khách.
Kệ ti vi và giá sách được thiết kế hiện đại, bắt mắt.
Bộ bàn ghế nhỏ.
Hệ ti vi và tủ bếp liền nhau.
Hệ tủ bếp dài dọc theo lối đi của ngôi nhà.
Phòng vệ sinh nhỏ đầy đủ công năng.
Đối với không gian phòng ngủ, nhằm đáp ứng tối đa về mặt công năng, chúng tôi bố trí hệ giường phản kết hợp tủ quần áo. Một bàn làm việc nhỏ đặt vị trí góc tường có tầm nhìn ra khoảng xanh giữa nhà. Đây cũng là nơi lấy ánh sáng và thoáng cho căn phòng .
Phòng ngủ của gia đình bố trí giường phản với gam màu nhẹ nhàng.
Giá sách và bàn làm việc được thiết kế đơn giản, hiện đại.
Hy vọng với phương án bố trí của Nhà Hay sẽ đáp ứng được tiện nghi cũng như nhu cầu sinh hoạt của bạn và gia đình.
Theo Afamily/Helino
- Không thể rời mắt khỏi mẫu bàn ăn mặt đá đầy cảm hứng
- Gợi ý bàn ăn mạ PVD hiện đại cho
căn hộ, chung cư
- Trang trí nhà bếp với mẫu bàn ăn mạ vàng được nhiều
người yêu thích
- Chọn bàn ăn mạ titan làm sáng bừng không gian nhà bếp
Vợ chồng tôi hiện đang sống trong một ngôi nhà cấp 4 có diện tích 39 mét vuông (3 x 13 m) đang được thiết kế nhu sau: 1 sân (1,5m), phòng khách (4m), 1 phòng ngủ (3,5m), 1 bếp + WC (3,5m). Mong các kiến trúc sư tư vấn thiết kế và bố trí nội thất để chúng tôi để có không gian sinh hoạt cho 2-3 người (bố mẹ và con) thông thoáng và hợp lý nhất.
Xin chận thành cảm ơn!
Thiên Phú
Kiến trúc sư tư vấn:
Dựa theo những thông tin mà bạn cung cấp và yêu cầu tư vấn thiết kế, chúng tôi xin đưa ra phương án mặt bằng tư vấn thiết kế như sau :

Mặt bằng bố trí các khu vực chức năng.
Để tận dụng tối đa diện tích, chúng tôi đã bố trí không gian phòng khách, ăn, bếp, vệ sinh, phòng ngủ... trở thành một không gian mang tính đa năng. Khoảng liên kết các không gian chức năng cũng chính là lối đi lại trong nhà. Các không gian được thiết kế theo phong cách tối giản, hiện đại với gam màu sáng là chủ đạo.
Ngôi nhà có lợi thế về chiều dài nhưng hạn chế về chiều ngang. Vì vậy, KTS đã tận dụng ưu điểm của ngôi nhà sử dụng một phần không gian cuối nhà làm sân tiểu cảnh, giải pháp thông thoáng, đối lưu tự nhiên.
Về mặt nội thất, phòng khách, bếp và ăn đều được sử dụng những đồ nhỏ gọn như bộ sofa có kích thước phù hợp với diện tích của phòng, bộ bàn ăn 4 ghế và hệ tủ bếp chữ I dọc theo chiều dài của ngôi nhà giúp tiết kiệm tối đa diện tích. Tất cả đều được thiết kế hợp lý về mặt không gian và màu sắc

Bộ sofa nhỏ gọn phù hợp với không gian khách.

Kệ ti vi và giá sách được thiết kế hiện đại, bắt mắt.

Bộ bàn ghế nhỏ.

Hệ ti vi và tủ bếp liền nhau.

Hệ tủ bếp dài dọc theo lối đi của ngôi nhà.

Phòng vệ sinh nhỏ đầy đủ công năng.

Đối với không gian phòng ngủ, nhằm đáp ứng tối đa về mặt công năng, chúng tôi bố trí hệ giường phản kết hợp tủ quần áo. Một bàn làm việc nhỏ đặt vị trí góc tường có tầm nhìn ra khoảng xanh giữa nhà. Đây cũng là nơi lấy ánh sáng và thoáng cho căn phòng .

Phòng ngủ của gia đình bố trí giường phản với gam màu nhẹ nhàng.

Giá sách và bàn làm việc được thiết kế đơn giản, hiện đại.
Hy vọng với phương án bố trí của Nhà Hay sẽ đáp ứng được tiện nghi cũng như nhu cầu sinh hoạt của bạn và gia đình.
Theo Afamily/Helino
Hãy Comment chuẩn SEO vừa làm tốt cho site của Bạn vừa không bị GOOGLE phạt. Nếu muốn lấy backlink hãy chèn URL không chèn code gắn text link. Biểu tượng hài hướcEmoticon